Garnett Powell Maximom Barlow & Farbes
Client
Garnnett Powell Maximom Barlow & Farbes
Location
1125 17th St #2200, Denver, CO 80202
Project Completion Year
Fall 2024
-
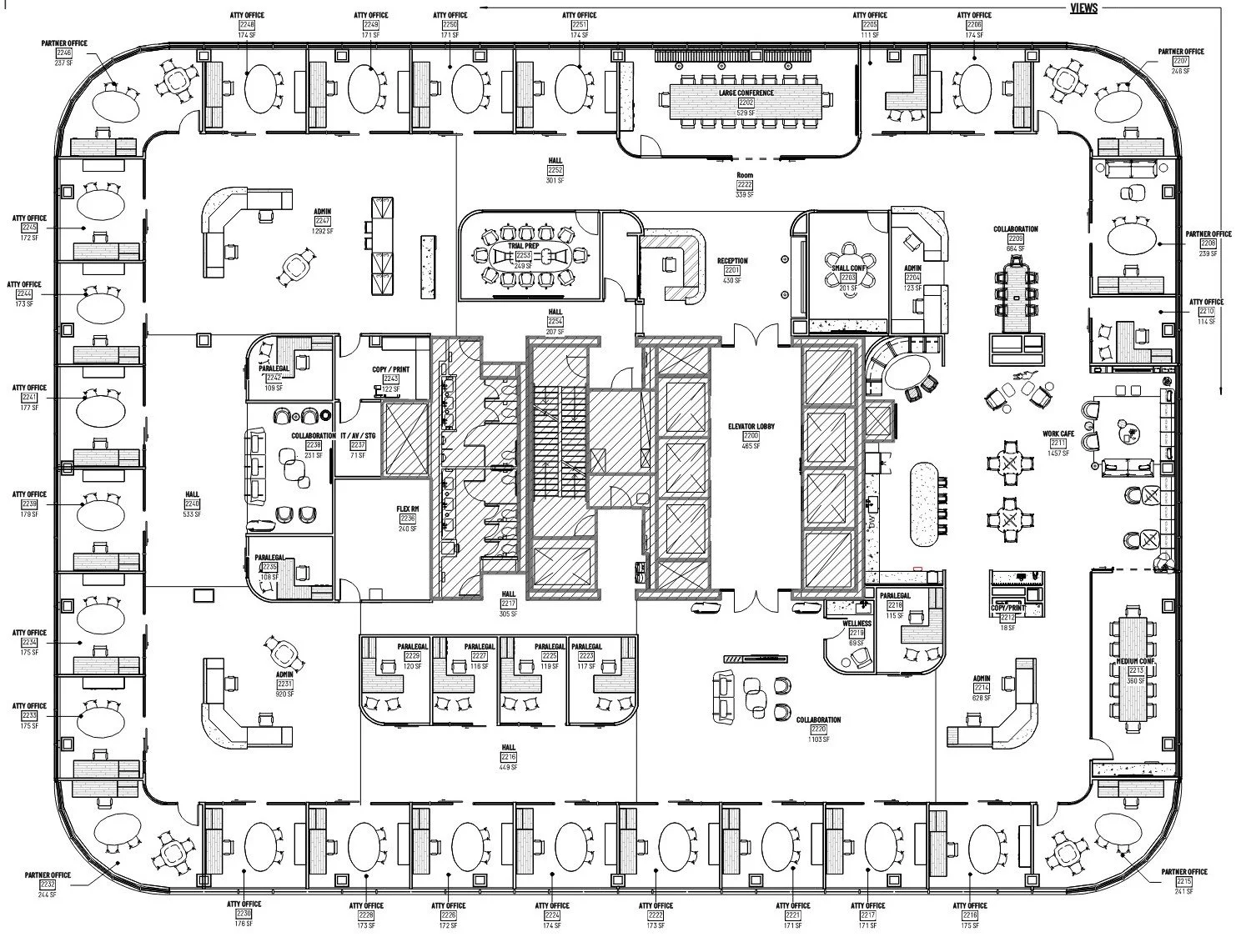
GPMBF’s new office breaks away from traditional law firm design, balancing professionalism with a modern, team-oriented culture. The space features generous and comfortable corridors, intentionally larger welcoming offices, expansive mountain views, and a dog-friendly policy, creating an environment that fosters collaboration and inclusivity. Curved glass, softened edges on custom millwork, rich leather panels, and neutral tones throughout add sophistication and warmth. Designed with budget-consciousness in mind, the project delivers a functional workspace that aligns with the firm’s competitive peers while staying true to its values. Key elements like a central “party room,” customizable offices, and thoughtful design details reflect GPMBF’s commitment to innovation and a respectful, dynamic workplace.
-
Functional Workplace design of:
26 Exterior Offices
1 Board Room
1 Medium Conference Room
2 Small Conference Rooms
Large Break Room also “Party Space” with full Kitchen & Beverage Center
Fireplace Design
4 Admin Stations
Elevator Lobby Design
Reception
-
Material selection
3D Renderings
Design Details & Documentation
Lighting Design
Furniture Coordination - Selection & Finishes
Construction Administration - RFI & Submittals
CONCEPT
& MOOD
FLOOR PLAN
Renderings & Final Construction Photos

